
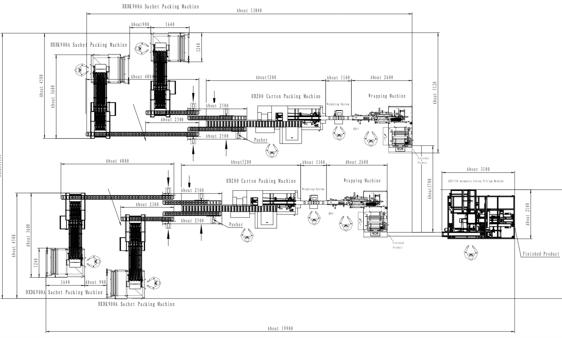
DXDK900A+DXDK900A+HD200-EN
SCM40 Packing Machine Producing Line II
(Including 4 sets DXDK900 Sachet Packing Machine, 4 sets Transfering and pile up System + 4 sets
Connected Transferring System + 2 sets HD200 Carton Packing Machine + 2 Carton Weighting + 2 sets DX30 Srinking
Machine + one set KZF-550 Automatic Box Filling Sealing Machine)
Usage:
This Producing Line is mainly used for the pharmaceutical products, food products and
cosmetics products. The packing products can be medicine granule, powder, also can be ketchup or shampoo,
the line can form the plastic sachet, fill the product and seal the sachet and cut, then pack the required
sachets number with introducing leaflet into the carton, which save the human resource,
and which is the advanced packing technology in China and in the whole world.
Main characters:
PLC controlling system, servo motor to drive to keep the packing machine lines accurate.
Human machine interface controlling, operate easier.
With the stainless steel, this is accord to GMP Standard.
DXDK900A has the function with photocell to make each packing picture totally on the surface of the sachet.
The connecting system has the function to check and delete the unfinished products, such as
if there is no sachets or no introducing leaflet, the deleting system will delete this package. In this way we keep 100% finished product rate.
These two machines in this line are connected with checking system,
can change the working information and checking each other and alarm if there is something wrong.
........ more,please download
Copyright BEIJING KTECH CO., LTD.